当前位置: 首页 | 会议 | 首页新闻

国家卫生健康委会同住房和城乡建设部印发新型冠状病毒肺炎应急救治设施设计导则(试行)

来源:国家卫生健康委员会 发布时间:2020-02-10 浏览次数:2306




导读:为积极应对新型冠状病毒感染的肺炎疫情防控严峻形势,指导做好传染病应急救治设施建设,切实满足疫情防控实施保障需要,国家卫生健康委同住房和城乡建设部2月8日编制印发了《新型冠状病毒肺炎应急救治设施设计导则(试行)》(以下简称《导则》)。


《导则》根据强制性国家标准《传染病医院建筑设计规范》(GB50849-2014)、《综合医院建筑设计规范》(GB51039-2014)等相关规范与标准的要求制定。


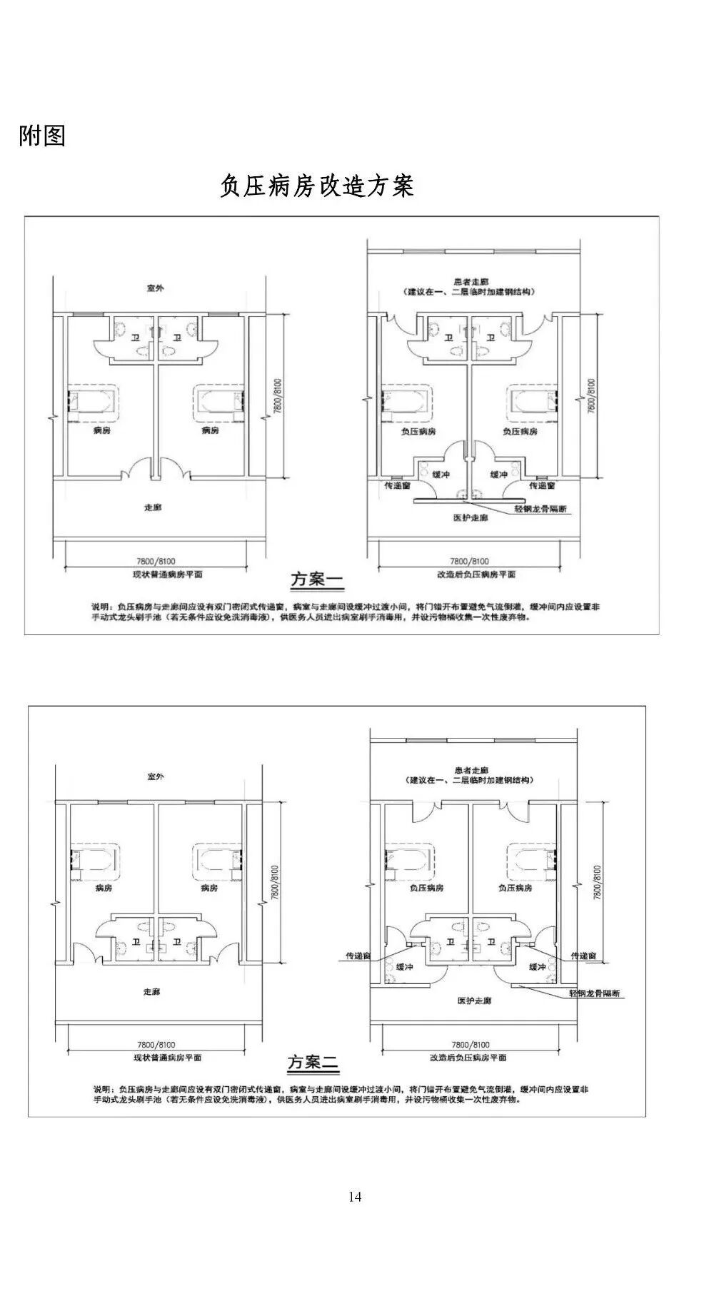
适用于集中收治新型冠状病毒肺炎患者的医疗机构或临时建筑的改建、扩建和新建工程项目,明确了相关工程项目的建设原则、选址、建筑设计、结构、给水排水、采暖通风及空调、电气及智能化、医用气体和运行维护等多方面要求,提出了压病房改造参考方案,并收集汇总了医疗类建筑相关主要建设标准目录


国家卫生健康委要求:各地要根据自身疫情形势和医疗资源实际情况,在当地疫情防治工作的统一部署下,加强部门协作,进一步做好统筹规划,精准调配医疗资源,调整现有医疗设施功能,全力保障疫情救治需要,坚决打赢疫情防控阻击战。


国家卫生健康委会同住房和城乡建设部印发新型冠状病毒肺炎应急救治设施设计导则(试行)(全文如下)



【返回】
Copyright © 城市通卡网京ICP备:09038623号-6  "城市通卡网,全新平台传播通卡,引领未来"  技术支持:东云创达